Ferran Gris

Arquitectura | Arqueologia | Fotografia

Menú

Vés al contingut
  • Arquitectura
  • Arqueologia
  • Fotografia
  • Contacte

Detall constructiu

Galeria • 11 abril 20049 març 2015 • Ferran Gris

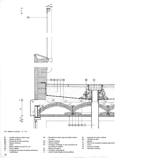
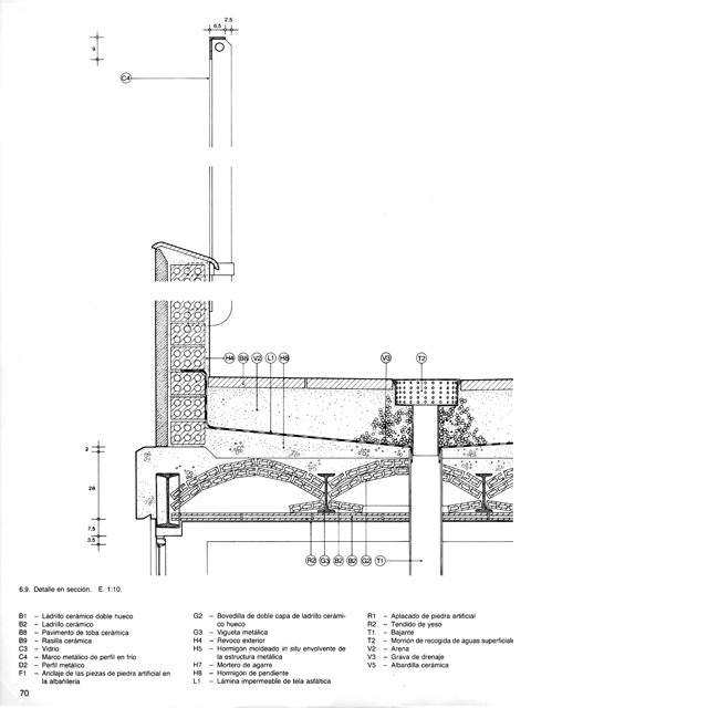
Detall constructiu de coberta.

Publicat a DetallEtiquetat CAIRATBookmark the permalink.

Navegació d'entrades

Acadèmia de Música
© 2015 FerranGris.com All Rights Reserved. • Gràcies al WordPress • Tema: Pictorico de WordPress.com.